Our Design & Execution Process
From concept to completion — a clear, step-by-step journey to your dream space
Stage 1 – Floor Plan
Drafting the basic floor layout.
Defining room proportions, circulation, and functionality.
Aligning the plan with client’s requirements.
✅ Visuals: Simple 2D plan diagrams.


Stage 2 – Exterior 3D Views
Developing exterior massing and building shape.
Exploring architectural style and aesthetics.
Presenting photorealistic 3D renders for clarity.
✅ Visuals: Previous 3D renders / reference images




Stage 3 – Structural Drawings
Designing columns, beams, and foundation details.
Ensuring alignment with floor plan and 3D design.
Providing structural safety and compliance.
✅ Visuals: Structural CAD drawings.




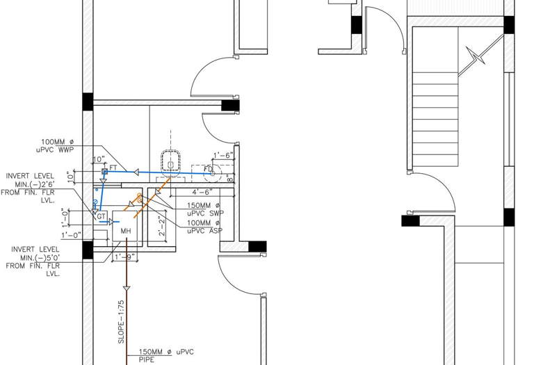
Stage 4 – Plumbing Layout
Mapping water supply and drainage pipelines.
Coordinating with bathrooms, kitchen, and service areas.
Ensuring efficient and practical water flow.
✅ Visuals: Plumbing diagrams for wet areas.






Stage 5 – Electrical Layout
Planning lighting, power points, and switchboards.
Coordinating layout with furniture & interior design.
Providing optimal electrical safety & convenience.
✅ Visuals: Lighting + switchboard layouts






Stage 6 – Working Drawings
Preparing construction-ready execution drawings.
Detailing wall sections, staircases, and joinery.
Offering precise guidelines for contractors.
✅ Visuals: Detailed CAD working drawings.




Stage 7 –
Material, Colors & Textures
Finalizing finishes, textures, and color palettes.
Coordinating interior & exterior materials for harmony.
Providing sample boards for client approval.
✅ Visuals: Material boards & color swatches.




Stage 7 – Execution
Construction Sequence:
Site leveling
Excavation as per centre line plan
Anti-termite chemical treatment (as per approved specifications)
Understand our process of work
Step 1 – Plot Details
We begin by understanding your plot — its size, dimensions, and orientation (East, West, North, South). This helps us design in harmony with natural light, wind flow, and Vastu principles (if required).
Step 2 – Your Requirements & Budget
Next, we discuss your space requirements, lifestyle needs, and budget. This allows us to tailor the design uniquely for you.
Step 3 – Fee Quotation & Scope
Based on your inputs, we share a clear quotation, scope of work, and payment methods — no hidden charges, no confusion.
Step 4 – Concept Design Review
We present the first draft of your design — thoughtfully curated and based on our conversations.
Step 5 – Revisions to Suit You
Not satisfied? No worries. We revise the design to match your taste, mood, and budget — until you love it.
Step 6 – Continue or Conclude
You can choose to continue with additional services (like 3D views, walkthroughs, or execution support) — or simply take the finalized design. Either way, your satisfaction is our priority.
Construction of any home or commercial project requires 50+ detailed drawings — all of which we provide with precision:


Architectural Design Proposal & Terms of Service
ar.KaranSahajwani@gmail.com | sahajArchitects.com
1. Scope of Work
All drawings will be provided floor by floor, in alignment with the construction sequence, to maintain clarity, manageability, and efficiency.
This approach ensures that the contractor can begin work on each floor immediately upon receiving the approved drawings.
Coordination with vendors for services (structural, plumbing, electrical, HVAC, and fire safety) will be supported as the project progresses.
Audio/Video guidance will be provided for the contractor, plumber, supervisor, electrician, and client.
2. Revisions
Up to 3 revisions are included per stage.
Additional revisions will be charged at 50% of the original fees.
Once a stage is finalized, changes in previous stages will not be entertained.
3. Site Visits & Exclusions
Two (2) site visits are included per stage, conducted by our appointed site supervisor.
Interior design is not included in this proposal.
4. Timeline
Standard delivery is within 3–5 working days after receipt of full advance payment.
Delays caused by late client inputs or approvals may extend the delivery timeline.
5. Payment
100% of the professional fees are payable in advance.
6. Agreement Validity
This agreement is valid for 12 months from the date of signing.
Work beyond this period will attract additional charges.
7. Changes & Cancellations
Changes requested after drawing completion will be charged again at 50% of the stage fees.
If the project is abandoned or delayed beyond one year, completed stages remain payable.
Either party may terminate the agreement with 15 days’ written notice.
8. Intellectual Property
The architect retains copyright and moral rights to all drawings, renders, and videos.
The architect may use the work for portfolio and promotional purposes; the client must credit the architect when sharing or publishing.
Full ownership rights can be transferred to the client upon payment of applicable license and transfer fees.
9. Communication
All approvals and communication must be documented in writing via email or WhatsApp for clarity and record.
After project completion, the architect will shoot a video of the finished work for portfolio and promotional purposes.
10. Liability
The architect is responsible only for the design and documentation.
On-site execution is the responsibility of the client and/or contractor.
The architect shall not be held liable for construction defects, site mishaps, or deviations during execution.
11. Terms and Conditions
Payments
Our fees are ₹50 per sq. ft for all the mentioned drawings (approximately $0.61 USD per sq. ft).
Payment Schedule
50% upfront
25% after the first milestone
25% upon project completion
Revisions
We will revise floor plans up to 3 times for any kind of drawing.
Any revisions beyond that will incur an additional 25% charge for each set of 3 extra revisions.
We value your time and will strive to deliver the best results on the first attempt.
Drawing Release
Drawings will be ready for delivery within 3–4 working days after payment is received.
We do not provide instant drawings; all deliveries will follow the 3–4 day schedule.
File Formats
Files will be shared in PDF and JPEG formats.
Source files such as DWG, SKP, MAX, and Photoshop will not be shared.
On-site Supervision Fees
₹2,000 per visit within the same city.
₹5,000 per visit for another city, plus travel, accommodation, and food expenses.
Alternative Supervision Option
If you do not require the architect’s visit, a local supervisor can be hired within the same city, with fees to be mutually discussed.
Service Validity
Our services are valid for one year from the start of the project.
If the project extends beyond this period, an additional ₹5,000 per month will be charged to continue providing consultation and support.
Call/Meeting Policy
All calls and live meetings will be scheduled in advance and communicated beforehand.
Instant changes, on-the-spot suggestions, or on-site modifications will not be accommodated.
(We appreciate your understanding and cooperation.)
